Elected Officials
Courts
Departments
Initiatives
Open Government
About
Login / Register
Home
/
Property & Tax Records
/
Property Records
/
Property & Tax Search
/
Parcel Profile
/
Sketches
Search for Another Parcel
Parcel Profile
Historical Card
Sketches
Photos
Tax Map
Taxes
Print View
Address: 12229 CARTER RD
Parcel: 04020072000100
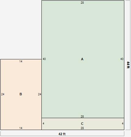
Parcel Sketches
Residential Card 1
A
MAIN
1272 square feet
B
EFP ENCL FRAME PORCH
276 square feet
C
OFP OPEN FRAME PORCH
80 square feet
D
EFP ENCL FRAME PORCH
220 square feet
Residential Card 2
A
MAIN
1120 square feet
B
FR GR FRAME GARAGE
336 square feet
C
OFP OPEN FRAME PORCH
112 square feet