Elected Officials
Courts
Departments
Initiatives
Open Government
About
Login / Register
Home
/
Property & Tax Records
/
Property Records
/
Property & Tax Search
/
Parcel Profile
/
Sketches
Search for Another Parcel
Parcel Profile
Historical Card
Sketches
Photos
Tax Map
Taxes
Print View
Address: 921 E MAIN ST
Parcel: 05019104001500
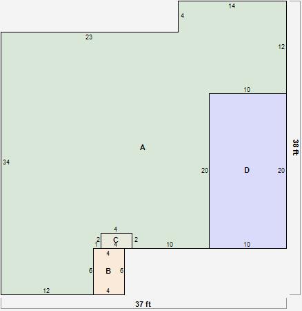
Parcel Sketches
Residential Card 1
A
MAIN
956 square feet
B
MA_PT CONC/MAS PATIO
24 square feet
C
OFP OPEN FRAME PORCH
8 square feet
D
MG/BG MASONRY/BRICK GARAGE
200 square feet