Elected Officials
Courts
Departments
Initiatives
Open Government
About
Login / Register
Home
/
Property & Tax Records
/
Property Records
/
Property & Tax Search
/
Parcel Profile
/
Sketches
Search for Another Parcel
Parcel Profile
Historical Card
Sketches
Photos
Tax Map
Taxes
Print View
Address: 126 E SOUTH ST
Parcel: 05027168000800
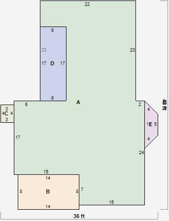
Parcel Sketches
Residential Card 1
A
MAIN
1121 square feet
B
OMP OPEN MASONRY PORCH
112 square feet
C
MA STOOP/TERR MAS STOOP
12 square feet
D
EFP ENCL FRAME PORCH
102 square feet
E
FRBAY FRAME BAY
24 square feet