Elected Officials
Courts
Departments
Initiatives
Open Government
About
Login / Register
Home
/
Property & Tax Records
/
Property Records
/
Property & Tax Search
/
Parcel Profile
/
Sketches
Search for Another Parcel
Parcel Profile
Historical Card
Sketches
Photos
Tax Map
Taxes
Print View
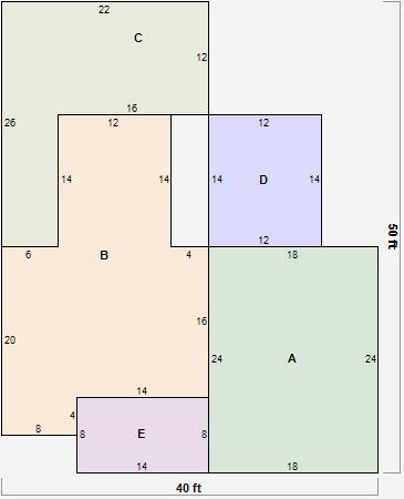
Address: 312 CONCORD ST
Parcel: 05027173001600
Parcel Sketches
Residential Card 1
A
MAIN
432 square feet
B
1S FR ONE STORY FRAME
552 square feet
C
EFP ENCL FRAME PORCH
348 square feet
D
WDDCK WOOD DECKS
168 square feet
E
EFP ENCL FRAME PORCH
112 square feet