Elected Officials
Courts
Departments
Initiatives
Open Government
About
Login / Register
Home
/
Property & Tax Records
/
Property Records
/
Property & Tax Search
/
Parcel Profile
/
Sketches
Search for Another Parcel
Parcel Profile
Historical Card
Sketches
Photos
Tax Map
Taxes
Print View
Address: 212 E PLEASANT ST
Parcel: 05027178000200
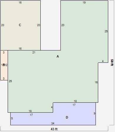
Parcel Sketches
Residential Card 1
A
MAIN
1228 square feet
B
OFP OPEN FRAME PORCH
36 square feet
C
1S FR ONE STORY FRAME
320 square feet
D
OFP OPEN FRAME PORCH
238 square feet