Elected Officials
Courts
Departments
Initiatives
Open Government
About
Login / Register
Home
/
Property & Tax Records
/
Property Records
/
Property & Tax Search
/
Parcel Profile
/
Sketches
Search for Another Parcel
Parcel Profile
Historical Card
Sketches
Photos
Tax Map
Taxes
Print View
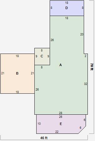
Address: 310 E SOUTH ST
Parcel: 05027179000300
Parcel Sketches
Residential Card 1
A
MAIN
1208 square feet
B
UNFIN BSMT BASEMENT UNFINISHED 1S FR ONE STORY FRAME 1S FR ONE STORY FRAME
378 square feet
C
1S FR ONE STORY FRAME
72 square feet
D
EFP ENCL FRAME PORCH
144 square feet
E
EFP ENCL FRAME PORCH
252 square feet