Elected Officials
Courts
Departments
Initiatives
Open Government
About
Login / Register
Home
/
Property & Tax Records
/
Property Records
/
Property & Tax Search
/
Parcel Profile
/
Sketches
Search for Another Parcel
Parcel Profile
Historical Card
Sketches
Photos
Tax Map
Taxes
Print View
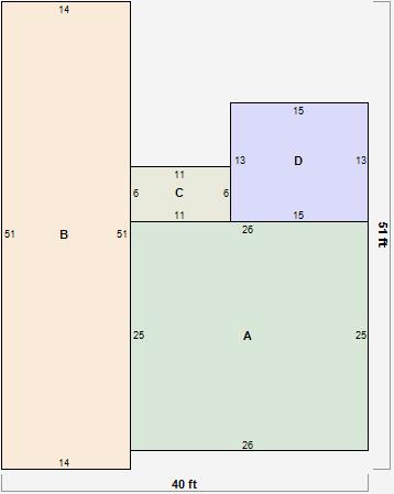
Address: 316 E MAIN ST
Parcel: 05027180000300
Parcel Sketches
Residential Card 1
A
MAIN
650 square feet
B
1S FR ONE STORY FRAME
714 square feet
C
EFP ENCL FRAME PORCH
66 square feet
D
OFP OPEN FRAME PORCH
195 square feet