Elected Officials
Courts
Departments
Initiatives
Open Government
About
Login / Register
Home
/
Property & Tax Records
/
Property Records
/
Property & Tax Search
/
Parcel Profile
/
Sketches
Search for Another Parcel
Parcel Profile
Historical Card
Sketches
Photos
Tax Map
Taxes
Print View
Address: 303 E SOUTH ST
Parcel: 05027180001400
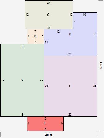
Parcel Sketches
Residential Card 1
A
MAIN
540 square feet
B
OFP OPEN FRAME PORCH
42 square feet
C
MA STOOP/TERR MAS STOOP
240 square feet
D
1S FR ONE STORY FRAME
312 square feet
E
UNFIN BSMT BASEMENT UNFINISHED 1S FR ONE STORY FRAME 1S FR ONE STORY FRAME
550 square feet
F
OFP OPEN FRAME PORCH
90 square feet