Elected Officials
Courts
Departments
Initiatives
Open Government
About
Login / Register
Home
/
Property & Tax Records
/
Property Records
/
Property & Tax Search
/
Parcel Profile
/
Sketches
Search for Another Parcel
Parcel Profile
Historical Card
Sketches
Photos
Tax Map
Taxes
Print View
Address: 352 E PLEASANT ST
Parcel: 05028183000300
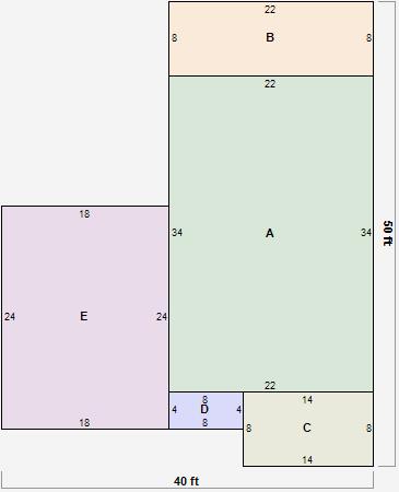
Parcel Sketches
Residential Card 1
A
MAIN
748 square feet
B
MA STOOP/TERR MAS STOOP
176 square feet
C
WDDCK WOOD DECKS
112 square feet
D
EFP ENCL FRAME PORCH
32 square feet
E
FR GR FRAME GARAGE
432 square feet