Elected Officials
Courts
Departments
Initiatives
Open Government
About
Login / Register
Home
/
Property & Tax Records
/
Property Records
/
Property & Tax Search
/
Parcel Profile
/
Sketches
Search for Another Parcel
Parcel Profile
Historical Card
Sketches
Photos
Tax Map
Taxes
Print View
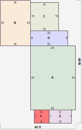
Address: 841 E MAIN ST
Parcel: 05029104002100
Parcel Sketches
Residential Card 1
A
MAIN
816 square feet
B
FR GR FRAME GARAGE
384 square feet
C
MA_PT CONC/MAS PATIO
225 square feet
D
EFP ENCL FRAME PORCH
160 square feet
E
EMP ENCL MASONRY PORCH
84 square feet
F
OFP OPEN FRAME PORCH
56 square feet