Elected Officials
Courts
Departments
Initiatives
Open Government
About
Login / Register
Home
/
Property & Tax Records
/
Property Records
/
Property & Tax Search
/
Parcel Profile
/
Sketches
Search for Another Parcel
Parcel Profile
Historical Card
Sketches
Photos
Tax Map
Taxes
Print View
Address: 17 7TH ST
Parcel: 05032164000300
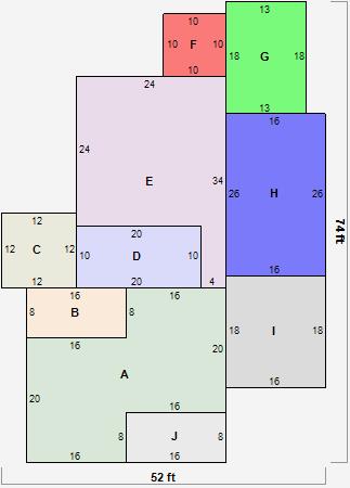
Parcel Sketches
Residential Card 1
A
MAIN
640 square feet
B
EFP ENCL FRAME PORCH
128 square feet
C
WDDCK WOOD DECKS
144 square feet
D
OFP OPEN FRAME PORCH
200 square feet
E
ST_PT STONE OR TILE PATIO
616 square feet
F
1S FR ONE STORY FRAME
100 square feet
G
1S FR ONE STORY FRAME
234 square feet
H
1S FR ONE STORY FRAME
416 square feet
I
FR GR FRAME GARAGE
288 square feet
J
OFP OPEN FRAME PORCH
128 square feet