Elected Officials
Courts
Departments
Initiatives
Open Government
About
Login / Register
Home
/
Property & Tax Records
/
Property Records
/
Property & Tax Search
/
Parcel Profile
/
Sketches
Search for Another Parcel
Parcel Profile
Historical Card
Sketches
Photos
Tax Map
Taxes
Print View
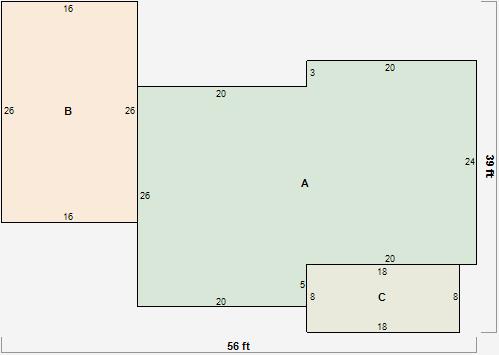
Address: 427 KING ST
Parcel: 05032174000800
Parcel Sketches
Residential Card 1
A
MAIN
1000 square feet
B
FR GR FRAME GARAGE
416 square feet
C
EFP ENCL FRAME PORCH
144 square feet