Elected Officials
Courts
Departments
Initiatives
Open Government
About
Login / Register
Home
/
Property & Tax Records
/
Property Records
/
Property & Tax Search
/
Parcel Profile
/
Sketches
Search for Another Parcel
Parcel Profile
Historical Card
Sketches
Photos
Tax Map
Taxes
Print View
Address: 629 E WAYNE ST
Parcel: 06010016001500
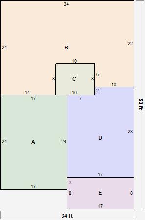
Parcel Sketches
Residential Card 1
A
MAIN
408 square feet
B
WDDCK WOOD DECKS
716 square feet
C
EFP ENCL FRAME PORCH
80 square feet
D
1S FR ONE STORY FRAME
377 square feet
E
EFP ENCL FRAME PORCH
136 square feet