Elected Officials
Courts
Departments
Initiatives
Open Government
About
Login / Register
Home
/
Property & Tax Records
/
Property Records
/
Property & Tax Search
/
Parcel Profile
/
Sketches
Search for Another Parcel
Parcel Profile
Historical Card
Sketches
Photos
Tax Map
Taxes
Print View
Address: 615 E WAYNE ST
Parcel: 06010016001700
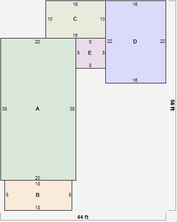
Parcel Sketches
Residential Card 1
A
MAIN
760 square feet
B
1S FR ONE STORY FRAME
144 square feet
C
MA_PT CONC/MAS PATIO
160 square feet
D
FR GR FRAME GARAGE
352 square feet
E
EFP ENCL FRAME PORCH
64 square feet