Elected Officials
Courts
Departments
Initiatives
Open Government
About
Login / Register
Home
/
Property & Tax Records
/
Property Records
/
Property & Tax Search
/
Parcel Profile
/
Sketches
Search for Another Parcel
Parcel Profile
Historical Card
Sketches
Photos
Tax Map
Taxes
Print View
Address: 1020 N CENTER ST
Parcel: 06010019003200
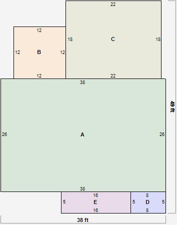
Parcel Sketches
Residential Card 1
A
MAIN
988 square feet
B
WDDCK WOOD DECKS
144 square feet
C
FR GR FRAME GARAGE
396 square feet
D
OMP OPEN MASONRY PORCH
40 square feet
E
1S FR ONE STORY FRAME
80 square feet