Elected Officials
Courts
Departments
Initiatives
Open Government
About
Login / Register
Home
/
Property & Tax Records
/
Property Records
/
Property & Tax Search
/
Parcel Profile
/
Sketches
Search for Another Parcel
Parcel Profile
Historical Card
Sketches
Photos
Tax Map
Taxes
Print View
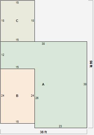
Address: 1030 N CENTER ST
Parcel: 06010019003400
Parcel Sketches
Residential Card 1
A
MAIN
1054 square feet
B
FR GR FRAME GARAGE
360 square feet
C
MA_PT CONC/MAS PATIO
270 square feet