Elected Officials
Courts
Departments
Initiatives
Open Government
About
Login / Register
Home
/
Property & Tax Records
/
Property Records
/
Property & Tax Search
/
Parcel Profile
/
Sketches
Search for Another Parcel
Parcel Profile
Historical Card
Sketches
Photos
Tax Map
Taxes
Print View
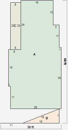
Address: 642 N CENTER ST
Parcel: 06015024000100
Parcel Sketches
Residential Card 1
A
MAIN
1164 square feet
B
EFP ENCL FRAME PORCH
5 square feet
C
1S FR ONE STORY FRAME
115 square feet