Elected Officials
Courts
Departments
Initiatives
Open Government
About
Login / Register
Home
/
Property & Tax Records
/
Property Records
/
Property & Tax Search
/
Parcel Profile
/
Sketches
Search for Another Parcel
Parcel Profile
Historical Card
Sketches
Photos
Tax Map
Taxes
Print View
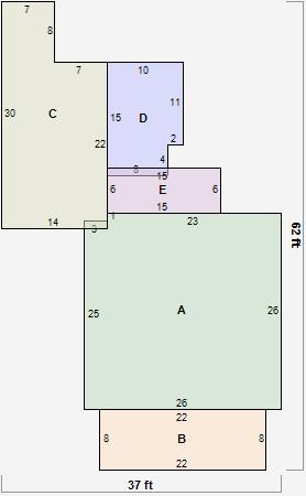
Address: 114 E IRVING ST
Parcel: 06015025000200
Parcel Sketches
Residential Card 1
A
MAIN
673 square feet
B
EFP ENCL FRAME PORCH
176 square feet
C
FR GR FRAME GARAGE
364 square feet
D
MA_PT CONC/MAS PATIO
142 square feet
E
EFP ENCL FRAME PORCH
90 square feet