Elected Officials
Courts
Departments
Initiatives
Open Government
About
Login / Register
Home
/
Property & Tax Records
/
Property Records
/
Property & Tax Search
/
Parcel Profile
/
Sketches
Search for Another Parcel
Parcel Profile
Historical Card
Sketches
Photos
Tax Map
Taxes
Print View
Address: 509 E SMITH ST
Parcel: 06021015001201
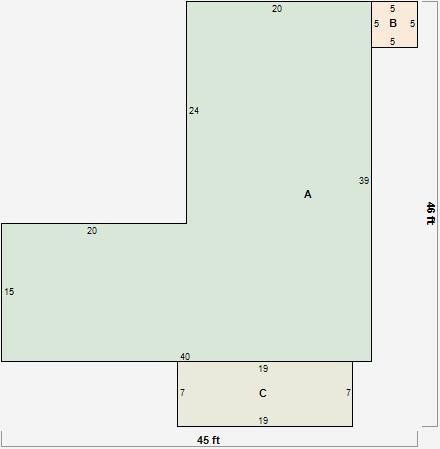
Parcel Sketches
Residential Card 1
A
MAIN
1080 square feet
B
EFP ENCL FRAME PORCH
25 square feet
C
EFP ENCL FRAME PORCH
133 square feet