Elected Officials
Courts
Departments
Initiatives
Open Government
About
Login / Register
Home
/
Property & Tax Records
/
Property Records
/
Property & Tax Search
/
Parcel Profile
/
Sketches
Search for Another Parcel
Parcel Profile
Historical Card
Sketches
Photos
Tax Map
Taxes
Print View
Address: 16 E FREDERICK ST
Parcel: 06022029000200
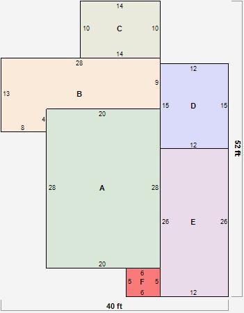
Parcel Sketches
Residential Card 1
A
MAIN
560 square feet
B
1S FR ONE STORY FRAME
284 square feet
C
WDDCK WOOD DECKS
140 square feet
D
MA_PT CONC/MAS PATIO
180 square feet
E
FR GR FRAME GARAGE
312 square feet
F
OFP OPEN FRAME PORCH
30 square feet