Elected Officials
Courts
Departments
Initiatives
Open Government
About
Login / Register
Home
/
Property & Tax Records
/
Property Records
/
Property & Tax Search
/
Parcel Profile
/
Sketches
Search for Another Parcel
Parcel Profile
Historical Card
Sketches
Photos
Tax Map
Taxes
Print View
Address: 233 WRIGHT ST
Parcel: 06022029000900
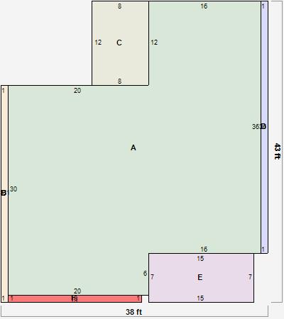
Parcel Sketches
Residential Card 1
A
MAIN
1176 square feet
B
FROVR FRAME OVERHANG
31 square feet
C
EFP ENCL FRAME PORCH
96 square feet
D
FROVR FRAME OVERHANG
36 square feet
E
EFP ENCL FRAME PORCH
105 square feet
F
FROVR FRAME OVERHANG
19 square feet