Elected Officials
Courts
Departments
Initiatives
Open Government
About
Login / Register
Home
/
Property & Tax Records
/
Property Records
/
Property & Tax Search
/
Parcel Profile
/
Sketches
Search for Another Parcel
Parcel Profile
Historical Card
Sketches
Photos
Tax Map
Taxes
Print View
Address: 65 E FREDERICK ST
Parcel: 06022030001400
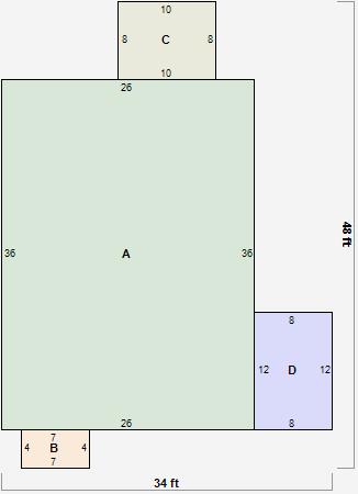
Parcel Sketches
Residential Card 1
A
MAIN
936 square feet
B
1SMAS MASONRY
28 square feet
C
WDDCK WOOD DECKS
80 square feet
D
EMP ENCL MASONRY PORCH
96 square feet