Elected Officials
Courts
Departments
Initiatives
Open Government
About
Login / Register
Home
/
Property & Tax Records
/
Property Records
/
Property & Tax Search
/
Parcel Profile
/
Sketches
Search for Another Parcel
Parcel Profile
Historical Card
Sketches
Photos
Tax Map
Taxes
Print View
Address: 127 PARK ST
Parcel: 06022093000700
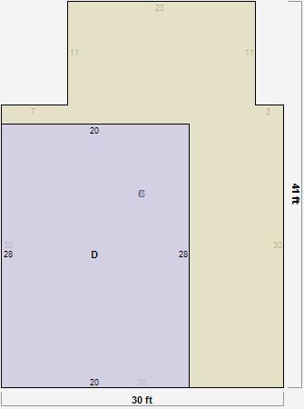
Parcel Sketches
Commercial Card 1
A
MAIN
1120 square feet
B
MAIN
1120 square feet
C
MAIN
1120 square feet
D
MAIN
560 square feet