Elected Officials
Courts
Departments
Initiatives
Open Government
About
Login / Register
Home
/
Property & Tax Records
/
Property Records
/
Property & Tax Search
/
Parcel Profile
/
Sketches
Search for Another Parcel
Parcel Profile
Historical Card
Sketches
Photos
Tax Map
Taxes
Print View
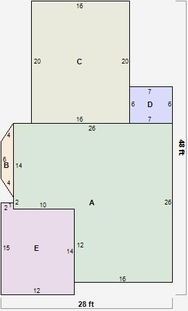
Address: 115 MAPLE AVE
Parcel: 06022094001000
Parcel Sketches
Residential Card 1
A
MAIN
556 square feet
B
MABAY MASONRY BAY
18 square feet
C
1SMAS MASONRY
320 square feet
D
MASUT MASONRY UTIL
42 square feet
E
OFP OPEN FRAME PORCH
170 square feet