Elected Officials
Courts
Departments
Initiatives
Open Government
About
Login / Register
Home
/
Property & Tax Records
/
Property Records
/
Property & Tax Search
/
Parcel Profile
/
Sketches
Search for Another Parcel
Parcel Profile
Historical Card
Sketches
Photos
Tax Map
Taxes
Print View
Address: 171 WRIGHT ST
Parcel: 06022097000300
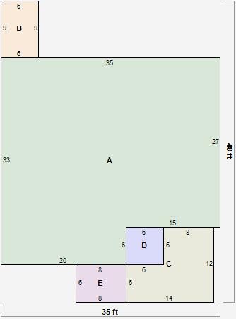
Parcel Sketches
Residential Card 1
A
MAIN
1065 square feet
B
WDDCK WOOD DECKS
54 square feet
C
OFP OPEN FRAME PORCH OFP OPEN FRAME PORCH
132 square feet
D
EFP ENCL FRAME PORCH OFP OPEN FRAME PORCH
36 square feet
E
OFP OPEN FRAME PORCH EFP ENCL FRAME PORCH
48 square feet