Elected Officials
Courts
Departments
Initiatives
Open Government
About
Login / Register
Home
/
Property & Tax Records
/
Property Records
/
Property & Tax Search
/
Parcel Profile
/
Sketches
Search for Another Parcel
Parcel Profile
Historical Card
Sketches
Photos
Tax Map
Taxes
Print View
Address: 158 MAPLE AVE
Parcel: 06022097002400
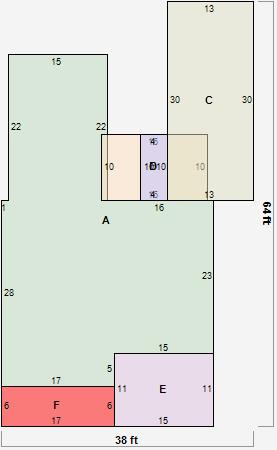
Parcel Sketches
Residential Card 1
A
MAIN
1151 square feet
B
1S FR ONE STORY FRAME 1S FR ONE STORY FRAME
160 square feet
C
FR GR FRAME GARAGE
390 square feet
D
OFP OPEN FRAME PORCH
40 square feet
E
1S FR ONE STORY FRAME
165 square feet
F
EFP ENCL FRAME PORCH
102 square feet