Elected Officials
Courts
Departments
Initiatives
Open Government
About
Login / Register
Home
/
Property & Tax Records
/
Property Records
/
Property & Tax Search
/
Parcel Profile
/
Sketches
Search for Another Parcel
Parcel Profile
Historical Card
Sketches
Photos
Tax Map
Taxes
Print View
Address: 210 MAPLE AVE
Parcel: 06022097002800
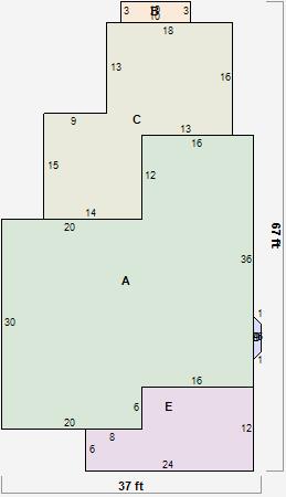
Parcel Sketches
Residential Card 1
A
MAIN
1176 square feet
B
EFP ENCL FRAME PORCH
30 square feet
C
1S FR ONE STORY FRAME
483 square feet
D
FRBAY FRAME BAY
5 square feet
E
EFP ENCL FRAME PORCH
240 square feet