Elected Officials
Courts
Departments
Initiatives
Open Government
About
Login / Register
Home
/
Property & Tax Records
/
Property Records
/
Property & Tax Search
/
Parcel Profile
/
Sketches
Search for Another Parcel
Parcel Profile
Historical Card
Sketches
Photos
Tax Map
Taxes
Print View
Address: 327 E WASHINGTON ST
Parcel: 06022098001200
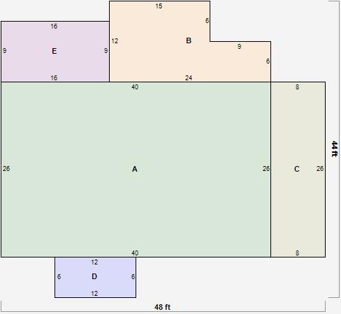
Parcel Sketches
Residential Card 1
A
MAIN
1040 square feet
B
WDDCK WOOD DECKS
234 square feet
C
WDDCK WOOD DECKS
208 square feet
D
EFP ENCL FRAME PORCH
72 square feet
E
EFP ENCL FRAME PORCH
144 square feet