Elected Officials
Courts
Departments
Initiatives
Open Government
About
Login / Register
Home
/
Property & Tax Records
/
Property Records
/
Property & Tax Search
/
Parcel Profile
/
Sketches
Search for Another Parcel
Parcel Profile
Historical Card
Sketches
Photos
Tax Map
Taxes
Print View
Address: 140 WRIGHT ST
Parcel: 06022098001900
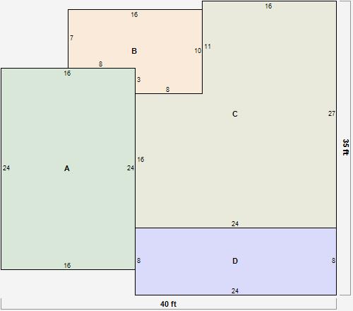
Parcel Sketches
Residential Card 1
A
MAIN
384 square feet
B
OFP OPEN FRAME PORCH EFP ENCL FRAME PORCH
136 square feet
C
1S FR ONE STORY FRAME
560 square feet
D
EFP ENCL FRAME PORCH
192 square feet