Elected Officials
Courts
Departments
Initiatives
Open Government
About
Login / Register
Home
/
Property & Tax Records
/
Property Records
/
Property & Tax Search
/
Parcel Profile
/
Sketches
Search for Another Parcel
Parcel Profile
Historical Card
Sketches
Photos
Tax Map
Taxes
Print View
Address: 409 E WASHINGTON ST
Parcel: 06022099000900
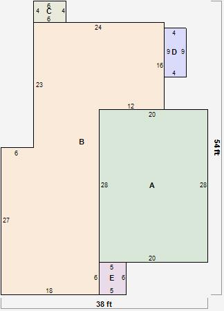
Parcel Sketches
Residential Card 1
A
MAIN
560 square feet
B
1S FR ONE STORY FRAME
954 square feet
C
OFP OPEN FRAME PORCH
24 square feet
D
FRBAY FRAME BAY
36 square feet
E
OFP OPEN FRAME PORCH
30 square feet