Elected Officials
Courts
Departments
Initiatives
Open Government
About
Login / Register
Home
/
Property & Tax Records
/
Property Records
/
Property & Tax Search
/
Parcel Profile
/
Sketches
Search for Another Parcel
Parcel Profile
Historical Card
Sketches
Photos
Tax Map
Taxes
Print View
Address: 1067 N CENTER ST
Parcel: 07010036000800
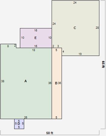
Parcel Sketches
Residential Card 1
A
MAIN
952 square feet
B
1S FR ONE STORY FRAME
180 square feet
C
FR GR FRAME GARAGE
652 square feet
D
OFP OPEN FRAME PORCH
25 square feet
E
OFP OPEN FRAME PORCH
160 square feet