Elected Officials
Courts
Departments
Initiatives
Open Government
About
Login / Register
Home
/
Property & Tax Records
/
Property Records
/
Property & Tax Search
/
Parcel Profile
/
Sketches
Search for Another Parcel
Parcel Profile
Historical Card
Sketches
Photos
Tax Map
Taxes
Print View
Address: 720 MARION ST
Parcel: 07014046002100
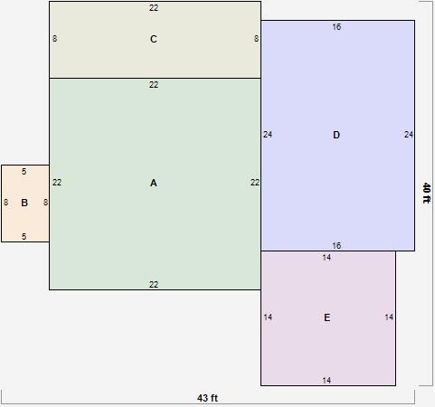
Parcel Sketches
Residential Card 1
A
MAIN
484 square feet
B
OFP OPEN FRAME PORCH
40 square feet
C
EFP ENCL FRAME PORCH
176 square feet
D
UNFIN BSMT BASEMENT UNFINISHED 1S FR ONE STORY FRAME 1/2FR FRAME HALF-STORY
384 square feet
E
MA_PT CONC/MAS PATIO CANPY CANOPY
196 square feet