Elected Officials
Courts
Departments
Initiatives
Open Government
About
Login / Register
Home
/
Property & Tax Records
/
Property Records
/
Property & Tax Search
/
Parcel Profile
/
Sketches
Search for Another Parcel
Parcel Profile
Historical Card
Sketches
Photos
Tax Map
Taxes
Print View
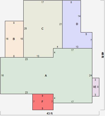
Address: 428 MEAD AVE
Parcel: 07023042000100
Parcel Sketches
Residential Card 1
A
MAIN
776 square feet
B
EFP ENCL FRAME PORCH
128 square feet
C
1SMAS MASONRY
409 square feet
D
EFP ENCL FRAME PORCH
203 square feet
E
MABAY MASONRY BAY
24 square feet
F
OFP OPEN FRAME PORCH
63 square feet