Elected Officials
Courts
Departments
Initiatives
Open Government
About
Login / Register
Home
/
Property & Tax Records
/
Property Records
/
Property & Tax Search
/
Parcel Profile
/
Sketches
Search for Another Parcel
Parcel Profile
Historical Card
Sketches
Photos
Tax Map
Taxes
Print View
Address: 123 W SMITH ST
Parcel: 07023042001100
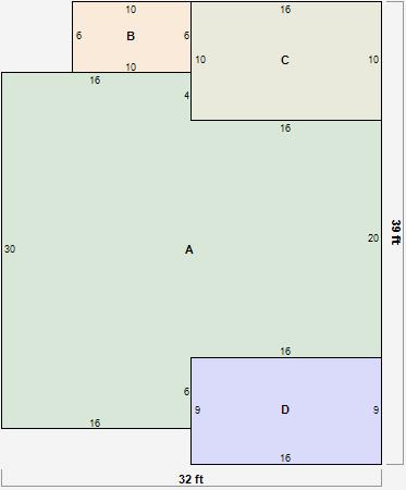
Parcel Sketches
Residential Card 1
A
MAIN
800 square feet
B
OFP OPEN FRAME PORCH
60 square feet
C
UNFIN BSMT BASEMENT UNFINISHED EFP ENCL FRAME PORCH
160 square feet
D
EFP ENCL FRAME PORCH
144 square feet