Elected Officials
Courts
Departments
Initiatives
Open Government
About
Login / Register
Home
/
Property & Tax Records
/
Property Records
/
Property & Tax Search
/
Parcel Profile
/
Sketches
Search for Another Parcel
Parcel Profile
Historical Card
Sketches
Photos
Tax Map
Taxes
Print View
Address: 223 W SMITH ST
Parcel: 07023043001900
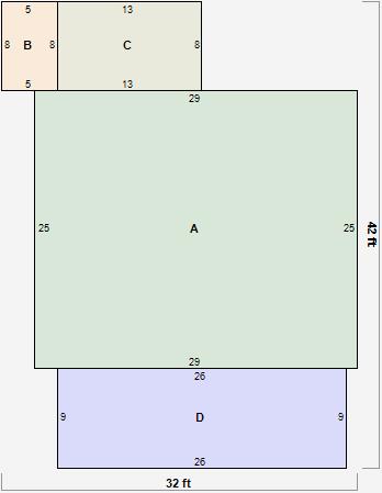
Parcel Sketches
Residential Card 1
A
MAIN
725 square feet
B
MA STOOP/TERR MAS STOOP
40 square feet
C
EFP ENCL FRAME PORCH EFP ENCL FRAME PORCH
104 square feet
D
OMP OPEN MASONRY PORCH
234 square feet