Elected Officials
Courts
Departments
Initiatives
Open Government
About
Login / Register
Home
/
Property & Tax Records
/
Property Records
/
Property & Tax Search
/
Parcel Profile
/
Sketches
Search for Another Parcel
Parcel Profile
Historical Card
Sketches
Photos
Tax Map
Taxes
Print View
Address: 309 MEAD AVE
Parcel: 07023072001300
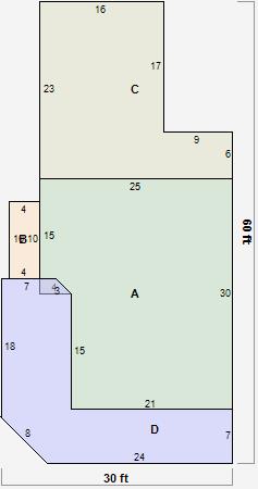
Parcel Sketches
Residential Card 1
A
MAIN
690 square feet
B
FRBAY FRAME BAY
40 square feet
C
1S FR ONE STORY FRAME
422 square feet
D
EFP ENCL FRAME PORCH
341 square feet