Elected Officials
Courts
Departments
Initiatives
Open Government
About
Login / Register
Home
/
Property & Tax Records
/
Property Records
/
Property & Tax Search
/
Parcel Profile
/
Sketches
Search for Another Parcel
Parcel Profile
Historical Card
Sketches
Photos
Tax Map
Taxes
Print View
Address: 617 W WASHINGTON ST
Parcel: 07025061000800
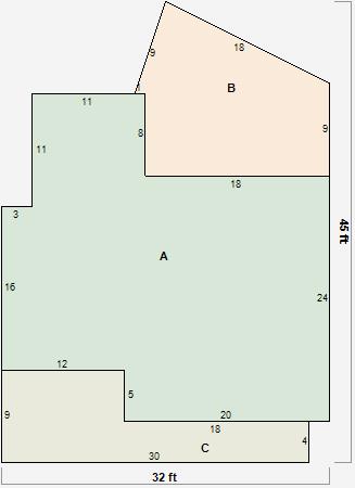
Parcel Sketches
Residential Card 1
A
MAIN
787 square feet
B
WDDCK WOOD DECKS
238 square feet
C
OFP OPEN FRAME PORCH
180 square feet