Elected Officials
Courts
Departments
Initiatives
Open Government
About
Login / Register
Home
/
Property & Tax Records
/
Property Records
/
Property & Tax Search
/
Parcel Profile
/
Sketches
Search for Another Parcel
Parcel Profile
Historical Card
Sketches
Photos
Tax Map
Taxes
Print View
Address: 205 MARION ST
Parcel: 07025065001300
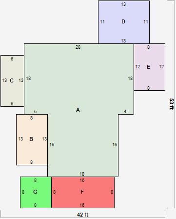
Parcel Sketches
Residential Card 1
A
MAIN
792 square feet
B
OFP OPEN FRAME PORCH
104 square feet
C
1S FR ONE STORY FRAME
78 square feet
D
1S FR ONE STORY FRAME
143 square feet
E
EFP ENCL FRAME PORCH
96 square feet
F
OFP OPEN FRAME PORCH
128 square feet
G
CANPY CANOPY
64 square feet