Elected Officials
Courts
Departments
Initiatives
Open Government
About
Login / Register
Home
/
Property & Tax Records
/
Property Records
/
Property & Tax Search
/
Parcel Profile
/
Sketches
Search for Another Parcel
Parcel Profile
Historical Card
Sketches
Photos
Tax Map
Taxes
Print View
Address: 215 MEAD AVE
Parcel: 07026073000800
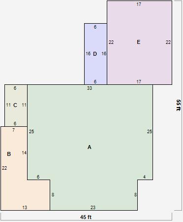
Parcel Sketches
Residential Card 1
A
MAIN
1009 square feet
B
EFP ENCL FRAME PORCH
202 square feet
C
1SMAS MASONRY
66 square feet
D
OFP OPEN FRAME PORCH
96 square feet
E
1SMAS MASONRY AT FN ATTIC-FINISHED
374 square feet