Elected Officials
Courts
Departments
Initiatives
Open Government
About
Login / Register
Home
/
Property & Tax Records
/
Property Records
/
Property & Tax Search
/
Parcel Profile
/
Sketches
Search for Another Parcel
Parcel Profile
Historical Card
Sketches
Photos
Tax Map
Taxes
Print View
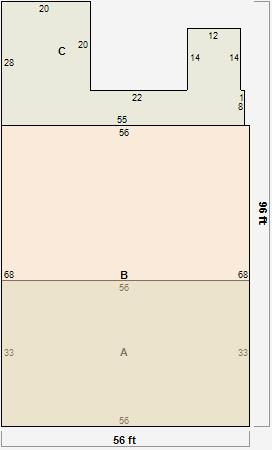
Address: 30 W MAIN ST
Parcel: 08033152000400
Parcel Sketches
Commercial Card 1
A
MAIN
1848 square feet
B
MAIN
3808 square feet
C
MAIN
1008 square feet