Address: S CENTER ST   Parcel: 08033154000401

Parcel Sketches


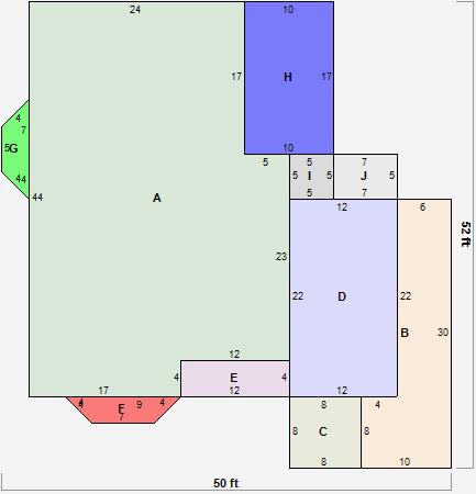
Residential Card 1

Residential Card 1
AMAIN1143 square feet
B ST_PT STONE OR TILE PATIO 212 square feet
C 1S FR ONE STORY FRAME EFP ENCL FRAME PORCH 64 square feet
D 1SMAS MASONRY 1S FR ONE STORY FRAME 264 square feet
E 1SMAS MASONRY 48 square feet
F MABAY MASONRY BAY MABAY MASONRY BAY 30 square feet
G MABAY MASONRY BAY 24 square feet
HUNFIN BSMT BASEMENT UNFINISHED EFP ENCL FRAME PORCH 170 square feet
I 1S FR ONE STORY FRAME 25 square feet
J FROVR FRAME OVERHANG 35 square feet