Elected Officials
Courts
Departments
Initiatives
Open Government
About
Login / Register
Home
/
Property & Tax Records
/
Property Records
/
Property & Tax Search
/
Parcel Profile
/
Sketches
Search for Another Parcel
Parcel Profile
Historical Card
Sketches
Photos
Tax Map
Taxes
Print View
Address: 302 SPRING ST
Parcel: 08033155000100
Parcel Sketches
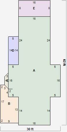
Residential Card 1
A
MAIN
984 square feet
B
FRBAY FRAME BAY FRBAY FRAME BAY AT UN ATTIC-UNFINISHED
24 square feet
C
OFP OPEN FRAME PORCH
92 square feet
D
FRBAY FRAME BAY FRBAY FRAME BAY AT UN ATTIC-UNFINISHED
40 square feet
E
OFP OPEN FRAME PORCH
104 square feet
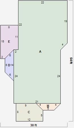
Residential Card 2
A
MAIN
1024 square feet
B
EFP ENCL FRAME PORCH
139 square feet
C
FRBAY FRAME BAY FRBAY FRAME BAY
12 square feet
D
EFP ENCL FRAME PORCH
70 square feet
E
1S FR ONE STORY FRAME
128 square feet