Elected Officials
Courts
Departments
Initiatives
Open Government
About
Login / Register
Home
/
Property & Tax Records
/
Property Records
/
Property & Tax Search
/
Parcel Profile
/
Sketches
Search for Another Parcel
Parcel Profile
Historical Card
Sketches
Photos
Tax Map
Taxes
Print View
Address: 502 W CHURCH ST
Parcel: 08034136001100
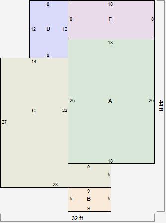
Parcel Sketches
Residential Card 1
A
MAIN
468 square feet
B
WDDCK WOOD DECKS
45 square feet
C
1S FR ONE STORY FRAME
423 square feet
D
OFP OPEN FRAME PORCH
96 square feet
E
1S FR ONE STORY FRAME
144 square feet