Elected Officials
Courts
Departments
Initiatives
Open Government
About
Login / Register
Home
/
Property & Tax Records
/
Property Records
/
Property & Tax Search
/
Parcel Profile
/
Sketches
Search for Another Parcel
Parcel Profile
Historical Card
Sketches
Photos
Tax Map
Taxes
Print View
Address: 506 W PLEASANT ST
Parcel: 08034137000900
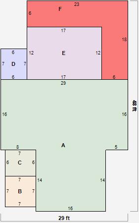
Parcel Sketches
Residential Card 1
A
MAIN
688 square feet
B
OFP OPEN FRAME PORCH
49 square feet
C
EFP ENCL FRAME PORCH
42 square feet
D
1S FR ONE STORY FRAME
42 square feet
E
1S FR ONE STORY FRAME
204 square feet
F
1S FR ONE STORY FRAME
210 square feet