Elected Officials
Courts
Departments
Initiatives
Open Government
About
Login / Register
Home
/
Property & Tax Records
/
Property Records
/
Property & Tax Search
/
Parcel Profile
/
Sketches
Search for Another Parcel
Parcel Profile
Historical Card
Sketches
Photos
Tax Map
Taxes
Print View
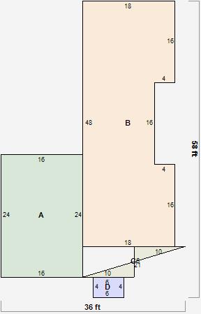
Address: 555 W CHURCH ST
Parcel: 08034137001700
Parcel Sketches
Residential Card 1
A
MAIN
384 square feet
B
UNFIN BSMT BASEMENT UNFINISHED 1S FR ONE STORY FRAME AT FN ATTIC-FINISHED
800 square feet
C
1S FR ONE STORY FRAME
60 square feet
D
MA STOOP/TERR MAS STOOP
24 square feet