Elected Officials
Courts
Departments
Initiatives
Open Government
About
Login / Register
Home
/
Property & Tax Records
/
Property Records
/
Property & Tax Search
/
Parcel Profile
/
Sketches
Search for Another Parcel
Parcel Profile
Historical Card
Sketches
Photos
Tax Map
Taxes
Print View
Address: 233 WEST ST
Parcel: 08035119001300
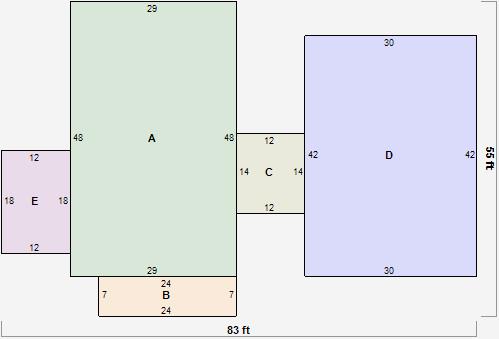
Parcel Sketches
Residential Card 1
A
MAIN
1392 square feet
B
OFP OPEN FRAME PORCH
168 square feet
C
EFP ENCL FRAME PORCH
168 square feet
D
FR GR FRAME GARAGE
1260 square feet
E
WDDCK WOOD DECKS
216 square feet