Elected Officials
Courts
Departments
Initiatives
Open Government
About
Login / Register
Home
/
Property & Tax Records
/
Property Records
/
Property & Tax Search
/
Parcel Profile
/
Sketches
Search for Another Parcel
Parcel Profile
Historical Card
Sketches
Photos
Tax Map
Taxes
Print View
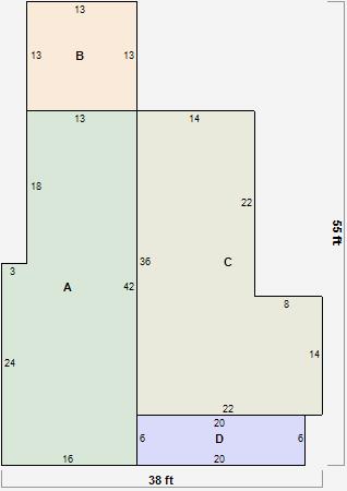
Address: 621 S CENTER ST
Parcel: 08038159000701
Parcel Sketches
Residential Card 1
A
MAIN
618 square feet
B
MA STOOP/TERR MAS STOOP
169 square feet
C
1S FR ONE STORY FRAME
616 square feet
D
OFP OPEN FRAME PORCH
120 square feet