Elected Officials
Courts
Departments
Initiatives
Open Government
About
Login / Register
Home
/
Property & Tax Records
/
Property Records
/
Property & Tax Search
/
Parcel Profile
/
Sketches
Search for Another Parcel
Parcel Profile
Historical Card
Sketches
Photos
Tax Map
Taxes
Print View
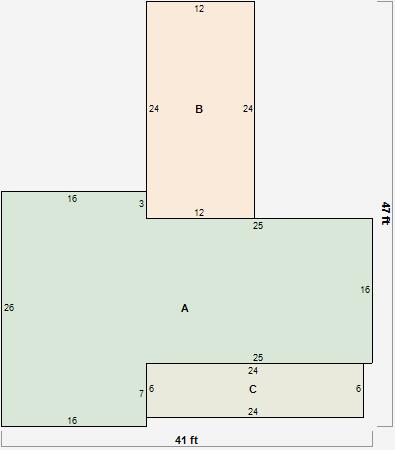
Address: 9927 BATEMAN AVE
Parcel: 09001002002400
Parcel Sketches
Residential Card 1
A
MAIN
816 square feet
B
1S FR ONE STORY FRAME
288 square feet
C
OFP OPEN FRAME PORCH
144 square feet