Elected Officials
Courts
Departments
Initiatives
Open Government
About
Login / Register
Home
/
Property & Tax Records
/
Property Records
/
Property & Tax Search
/
Parcel Profile
/
Sketches
Search for Another Parcel
Parcel Profile
Historical Card
Sketches
Photos
Tax Map
Taxes
Print View
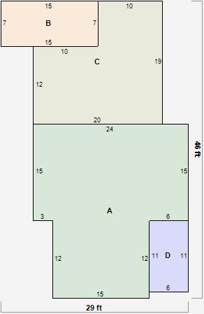
Address: 9891 BATEMAN AVE
Parcel: 09001002003000
Parcel Sketches
Residential Card 1
A
MAIN
540 square feet
B
EFP ENCL FRAME PORCH
105 square feet
C
UNFIN BSMT BASEMENT UNFINISHED 1S FR ONE STORY FRAME
310 square feet
D
EFP ENCL FRAME PORCH
66 square feet