Elected Officials
Courts
Departments
Initiatives
Open Government
About
Login / Register
Home
/
Property & Tax Records
/
Property Records
/
Property & Tax Search
/
Parcel Profile
/
Sketches
Search for Another Parcel
Parcel Profile
Historical Card
Sketches
Photos
Tax Map
Taxes
Print View
Address: 10439 CRANE ST
Parcel: 09005006000600
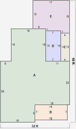
Parcel Sketches
Residential Card 1
A
MAIN
1008 square feet
B
WDDCK WOOD DECKS
105 square feet
C
OFP OPEN FRAME PORCH
52 square feet
D
1S FR ONE STORY FRAME
98 square feet
E
WDDCK WOOD DECKS
236 square feet